PRO cena:
2,54 €
Cena:
3,17 €
Apraksts
Specifikācija


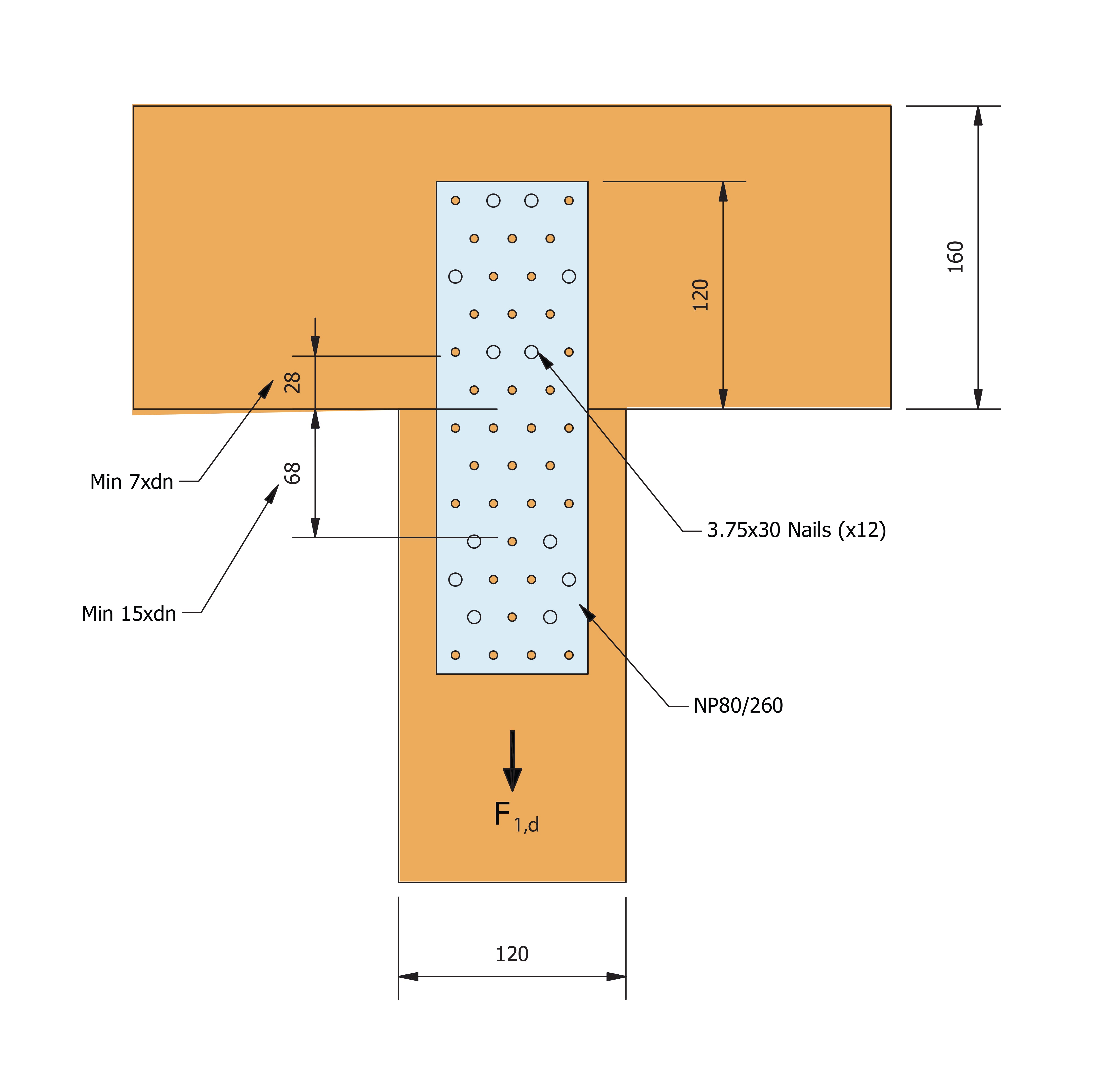
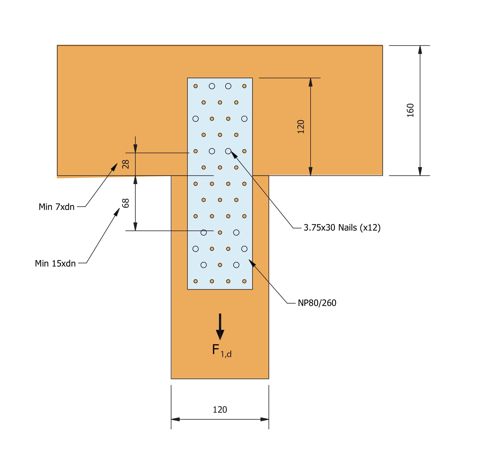
Cinkotā tērauda CE sertificētas nglu plāksnes izmanto, lai savienotu kopā divus vai vairākus koka elementus. Tie ir pieejami dažādos izmēros (skatīt saiti uz ražotāja mājaslapu apraksta apakšā).
Materiāls:
- Cinkots tērauds. Klase S250GD
Priekšrocības:
- Pieļauj liekšanu
- Daudzpusīgs pielietojums
- Pieejams dažādos izmēros
Produktu apraksts, specifikācija un pieejamie izmēri ražotāja mājaslapā: Nail Plate - NP | Simpson Strong-Tie (strongtie.lv)
Ražotājs
Produkta tips
Biezums
Cauruma diametrs
Materiāls
Product EN